Gelijkvloers app. | Tielen

Omschrijving

Mooi INSTAPKLAAR nieuwbouw appartement (74mē) met 2 slaapkamers en een kleine tuin op wandelafstand van het dorpscentrum en het treinstation van Tielen.

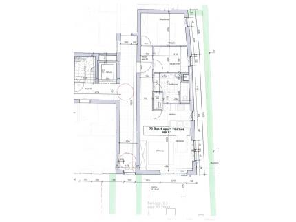
Het appartement is gelegen op het gelijkvloers van een kleinschalige Residentie "Hof van Maurits II" en bestaat uit een inkomhal die uitgeeft op de woonkamer vooraan met volledig ingerichte open keuken (kookplaat, afzuigkap, combi-oven, vaatwasser en ingebouwde ijskast) en aanpalend een berging.

Verder zijn er 2 slaapkamers en een mooie badkamer met wasmeubel, een grote inloopdouche, een toilet en ingemaakte kasten.

De woonkamer en de keuken geven via een schuifraam uit op een terras en tuin aan de straatzijde.

Bij het appartement hoort een individuele ondergrondse parkeerplaats en een ruime berging. Er is mogelijkheid om een extra staanplaats bij te huren.

Achteraan op het perceel zal een gemeenschappelijke fietsenberging en vuilberging worden geplaatst.

Geen huisdieren.

Meer informatie, tel. 014 70 50 08 of christoffel@vastgoedpicavet.be
Adres:   Kerkstraat 73, bus 4 - 2460 Tielen
Pand op kaartOmgeving pand

Indeling Gelijkvloers

Badkamer 1  6,5 mēNette badkamer met badkamermeubel met dubbele lavabo, ingemaakte kasten en een grote inloopdouche.
Berging  1,28 mēBerging aanpalend aan de keuken met aansluiting voor wasmachine, droogkast.
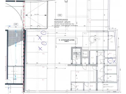
Garage  15 mēRuime parkeerplaats in ondergrondse garage met aanpalend een zeer ruime berging van 4,5mē.
Inkomhal  5,7 mēInkomhal die uitgeeft op de slaapkamers, badkamer en woonkamer.
Keuken 1  6 mēVolledig ingerichte keuken met fornuis, inbouwijskast, combi-oven, vaatwasser en ontbijthoek.
Living  28,50 mēWoonkamer met open keuken en plaats voor een eethoek. De woonkamer geeft middels een schuifraam uit op het terras en de tuin aan de straatzijde.
Slaapkamer 1  12,18 mēRuime slaapkamer met voldoende plaats voor een dubbel bed en een grote kast.
Slaapkamer 2  7,40 mēZeer ruime kinderkamer.
Terras  8,24 mēRuim terras dat deel uitmaakt van de privatieve voortuin.

Indeling Verdieping -1

kelderberging  4,5 mēIndividuele kelderberging met verlichting en elektriciteit.

Overige info

Tuin  Achteraan is een gezamenlijke tuin aanwezig met moestuin voor de volledige residentie.
Aantal douches  1
Aantal parkeerplaatsen  1
Afstand tot openbaar vervoer  450 m
Afstand tot winkels  400 m
Afstand tot school  450 m

Comfort

Keukentype  Geïnstalleerd
Verwarming  Aardgas - Hoge rendementsketel op aardgas met vloerverwarming.
Verwarmingsketel  Individueel
Centrale verwarming  ja
Bevloering  Keramische tegels
Dubbelglas  Aluminium kiepramen met dubbele beglazing.
Videofoon  ja
Distributie  ja
Lift  ja
Aansluiting elektriciteit  ja
Meter voor elektriciteit  Individuele meter
Aansluiting riolering  ja
Aansluiting aardgas  ja
Meter voor aardgas  Individuele meter
Aansluiting telefoonlijn  ja
Aansluiting Internet  ja
Aansluiting waterleiding  ja
Meter voor waterleiding  Individuele meter

Geografische ligging

Adres  Kerkstraat 73, bus 4 - 2460 Tielen
Vrij op  onmiddellijk
Omgeving  Dorp
Bestemming  Hoofdverblijf

Bebouwing

Bebouwing  halfopen
Bouwjaar  2016
Grond oppervlakte  74 mē
Woonoppervlakte  74 mē
Verdieping  0 van 3
Aantal slaapkamers  2
Aantal badkamers  1
Aantal wc's  1

Ruimtelijke ordening

Stedenbouwkundige vergunning verkregen    Ja
Optionele informatie    Woongebied
Dagvaardingen uitgebracht    Nee
Voorkooprecht op dit goed    Nee
Verkavelingsvergunning verkregen    Nee
Print deze pagina e-mail deze pagina vraag meer informatie Pand delen