Appartement | Kasterlee

Omschrijving

Nieuwbouw appartement met 2 slaapkamers en inpandig dakterras.

Residentie “CARDINA”, is een kleinschalig project in een rustige straat in het centrum van Kasterlee, bestaande uit 5 appartementen met 1, 2 of 3 slaapkamers, allen met terras en/of tuin.

Bovengronds zijn er 8 autostaanplaatsen waarvan 3 carports, en een gemeenschappelijke fiets- en vuilberging.

Het appartement bestaat uit een ruime inkomhal met apart gastentoilet en berging achteraan, de inkom geeft vooraan uit op de beide slaapkamers en de badkamer en achteraan op de leefruimte met zithoek, eethoek en open keuken ter hoogte van het dakterras achteraan. Aanpalend is er een berging.

De koper heeft inspraak in de binnen afwerking van het appartement en kan zelf de vloer, keuken, badkamer, … kiezen.

In de residentie is een grote, rolstoelvriendelijke lift voorzien.

Het appartement wordt verkocht onder de wet Breyne met 12% registratie op de grondwaarde en met 21% btw op de constructie.

Per appartement is een autostaanplaats en berging voorzien die de koper dient aan te kopen.

De appartementen worden afgewerkt conform de huidige voorgeschreven energienormen en zijn zeer energiezuinig.

TROEVEN:
•Rustige ligging
•Zeer energiezuinig: warmtepomp met vloerverwarming.
•Geluidsarme en energiezuinige liften.
•Zeer ruim appartement.
•Mooi dakterras.
•Hoogwaardige afwerking.

Indien u meer informatie wenst (prijzen, plannen van de verschillende appartementen, verkooplastenboek, …) of een toelichting bij u thuis of bij ons op kantoor wenst, aarzel dan niet contact op te nemen, tel: 014/715008 of 0496/511010 of stuur een e-mail christoffel@vastgoedpicavet.be

Adres:   Mgr. Cardijnstraat 43, bus 2 - 2460 Kasterlee
Pand op kaartOmgeving pand

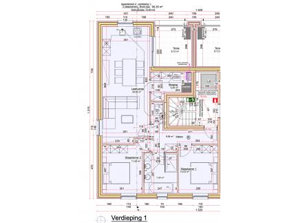
Indeling Verdieping 2

Badkamer 1  7,34 m˛De koper heeft inspraak in de afwerking, kiest zelf ligbad en/of douche en badkamermeubel.
Berging  5,29 m˛Berging ter hoogte van de leefruimte. Hier is eveneens de warmtepomp, ventilatie en aansluiting wasmachine en droogkast voorzien.
Inkomhal  6,88 m˛De inkomhal met apart toilet geeft vooraan uit op de beide slaapkamers, badkamer en achteraan op de leefruimte.
Keuken 1  7,00 m˛De koper kan zelf zijn keuken samenstellen.
Living  29,93 m˛Leefruimte bestaande uit zit- en eethoek, open keuken en schuifraam naar het inpandig terras.
Slaapkamer 1  11,52 m˛Grote slaapkamer, de koper kiest zelf de vloer. Rolluiken kunnen mits meerprijs.
Slaapkamer 2  10,53 m˛Grote slaapkamer, de koper kiest zelf de vloer. Rolluiken kunnen mits meerprijs.
Terras  8,12 m˛Inpandig terras achteraan ter hoogte van de leefruimte, bereikbaar via een schuifraam.
Wc1  1,31 m˛Hangtoilet met handenwasser ter hoogte van de inkomhal.

Overige info

Orientatie tuin  Z
Afstand tot openbaar vervoer  100 m
Afstand tot winkels  100 m
Afstand tot school  100 m

Comfort

Keukentype  Geďnstalleerd
Verwarming  Warmtepomp met vloerverwarming.
Verwarmingsketel  Individueel
Centrale verwarming  ja
Bevloering  De koper heeft inspraak in de bevloering (tegels, parket, keramisch parket, ...)
Dubbelglas  Hoogrendementsbeglazing K1.0
Parlofoon  ja
Videofoon  ja
Lift  ja
Aansluiting elektriciteit  ja
Meter voor elektriciteit  Individuele meter
Aansluiting telefoonlijn  ja
Aansluiting Internet  ja
Aansluiting waterleiding  ja
Meter voor waterleiding  Individuele meter

Geografische ligging

Adres  Mgr. Cardijnstraat 43, bus 2 - 2460 Kasterlee
Vrij op  bij oplevering
Omgeving  Dorp

Bebouwing

Bouwjaar  2025
Nieuwbouw  ja
Grond oppervlakte  90,35 m˛
Bouw oppervlakte  90,35 m˛
Woonoppervlakte  90,35 m˛
Verdieping  1 van 3
Aantal slaapkamers  2
Aantal badkamers  1
Aantal wc's  1

Ruimtelijke ordening

Stedenbouwkundige vergunning verkregen    Ja
Optionele informatie    Woongebied
Dagvaardingen uitgebracht    Nee
Voorkooprecht op dit goed    Nee
Verkavelingsvergunning verkregen    Nee
Print deze pagina e-mail deze pagina vraag meer informatie Pand delen